Tọa lạc tại thị trấn Đô Lương (Nghệ An), ngôi nhà 3 gian mang đến cho gia chủ không gian sống vừa hiện đại vừa đậm chất truyền thống. Đặc biệt, mái nhà được chia làm 3 nhằm giảm bề mặt tiếp xúc với ánh nắng mặt trời, giúp làm mát nhà, đồng thời tạo nên diện mạo độc đáo nhưng vẫn hài hòa với tổng thể cảnh quan.
Một trong những thách thức lớn đối với môi trường xây dựng hiện nay chính là tương lai phát triển của nông thôn. Hiện đại hóa cùng những tiến bộ công nghệ hứa hẹn mang đến cho chúng ta một cuộc sống tốt hơn với những điều kiện sống tiện nghi và hiện đại hơn. Tuy nhiên, ở một chừng mực nào đó, chúng cũng cắt đứt mối liên hệ giữa đời sống nông thôn và các giá trị truyền thống.
Tốc độ đô thị hóa ở Việt Nam đang ở mức độ rất cao và sẽ còn tăng nhanh hơn nữa trong tương lai. Điều này khiến cho quỹ đất ở các vùng nông thôn ngày càng bị thu hẹp. Bên cạnh đó, sự gia tăng dân số, sự phát triển của xã hội gắn liền với nhu cầu của mỗi người về một cuộc sống hiện đại kéo theo sự tăng cao tất yếu về quỹ đất xây dựng nhà ở và các công trình công cộng tại các làng quê Việt.
Bởi vậy, nông thôn dần trở nên chật chội hơn, cảnh quan môi trường tự nhiên dần bị thay thế bởi nhà ở, các hạ tầng hiện đại, công trình kiến trúc công cộng. Xuất phát từ nguyên nhân quỹ đất hạn chế, nên trong gần 20 năm qua, các loại nhà ống đô thị với chiều cao từ 3-5 tầng đã du nhập, len lỏi vào các làng quê, khiến cho kiến trúc nông thôn trở nên hỗn tạp, mất dần đi bản sắc truyền thống.
Không có một cấu trúc nông thôn nào có thể trường tồn từ thế kỷ này sang thế kỷ khác, nhưng vận động và phát triển theo hướng nào mà vẫn gìn giữ được tinh thần và tinh hoa truyền thống, để nhận diện được bản sắc của nông thôn Việt Nam là mục tiêu mà kiến trúc sư hướng đến.
Nhà 3 gian 3 mái ở Đô Lương (Nghệ An) được thiết kế và xây dựng trong bối cảnh đó.

Nhà 3 gian là tổ ấm của một cặp vợ chồng trẻ có hai con nhỏ. Do quá trình đô thị hóa, khu đất có kích thước phân lô khác với cấu trúc nông thôn truyền thống trong vùng.

Từ cấu trúc ngôi nhà ở 3 gian truyền thống, đội ngũ thiết kế khéo léo tổ hợp và sắp xếp lại "3 trong 1" vào khu đất dài, hẹp.

Sự tương phản giữa mái lợp ngói đỏ và tường sơn trắng tinh khôi khiến công trình thêm nổi bật, gây ấn tượng ngay từ ánh nhìn đầu tiên.

Mái nhà được chia làm ba nhằm giảm bề mặt tiếp xúc với ánh nắng mặt trời, góp phần làm mát không gian sinh hoạt bên trong.

Nhà 3 gian có hai khoảng sân trong đảm bảo tính liên kết trong và ngoài, đồng thời kết nối các không gian riêng trong gia đình. Mái ngói truyền thống kết hợp ăn ý với hệ vì kèo sắt cách điệu cho kết cấu đỡ mái.

Khoảng sân vườn phía trước kết hợp mái hiên tạo thành không gian sinh hoạt và giao lưu với láng giềng. Đây là nét đặc trưng văn hóa sinh hoạt ngoài trời tại vùng nông thôn Bắc Trung Bộ.

Do chi phí xây dựng khá hạn hẹp và việc sử dụng đội thợ địa phương, kiến trúc sư cố gắng đưa ra một cấu trúc không gian tối giản, dễ thi công.

Đội ngũ thiết kế đã làm việc rất nhiều với thợ xây dựng địa phương để đưa ra những kĩ thuật xử lí tối thiểu mà vẫn mang lại hiệu quả tối ưu cho một không gian hiện đại kết hợp yếu tố truyền thống tại địa phương.

Những khoảng sân nhỏ xinh kết nối ba gian nhà với nhau một cách tự nhiên nhất.

Không gian phòng khách ngập tràn nắng gió hướng nhìn ra sân trước. Bộ bàn ghế gỗ đơn giản, mộc mạc tạo cảm giác ấm áp, thân thuộc.

Nội thất nhà 3 gian được thiết kế theo phong cách tối giản, thân thiện.

Những chậu cây bonsai xanh mát là điểm nhấn trang trí sinh động cho không gian sống trong nhà ngói 3 gian này.

"Đối mặt với sự phát triển ồ ạt nhà ở tại các khu vực nông thôn đang chịu sự tác động của quá trình đô thị hóa, chúng tôi cố gắng tìm mối liên kết giữa các yếu tố truyền thống và hiện đại, đồng thời nắm bắt tính ưu việt của công nghệ hiện đại để tìm ra mối liên hệ với địa phương", kiến trúc sư cho biết.

Ngôi nhà được thiết kế và xây dựng tại nông thôn trong điều kiện quỹ đất hạn hẹp, cấu trúc làng quê ngày càng bị phá vỡ, cùng sự du nhập kiến trúc hỗn tạp, mất dần đi bản sắc truyền thống.

Công trình mang hơi thở của nông thôn đương đại, được phát triển trên nền tảng văn hóa và truyền thống tại địa phương, hài hòa với bối cảnh hiện tại.

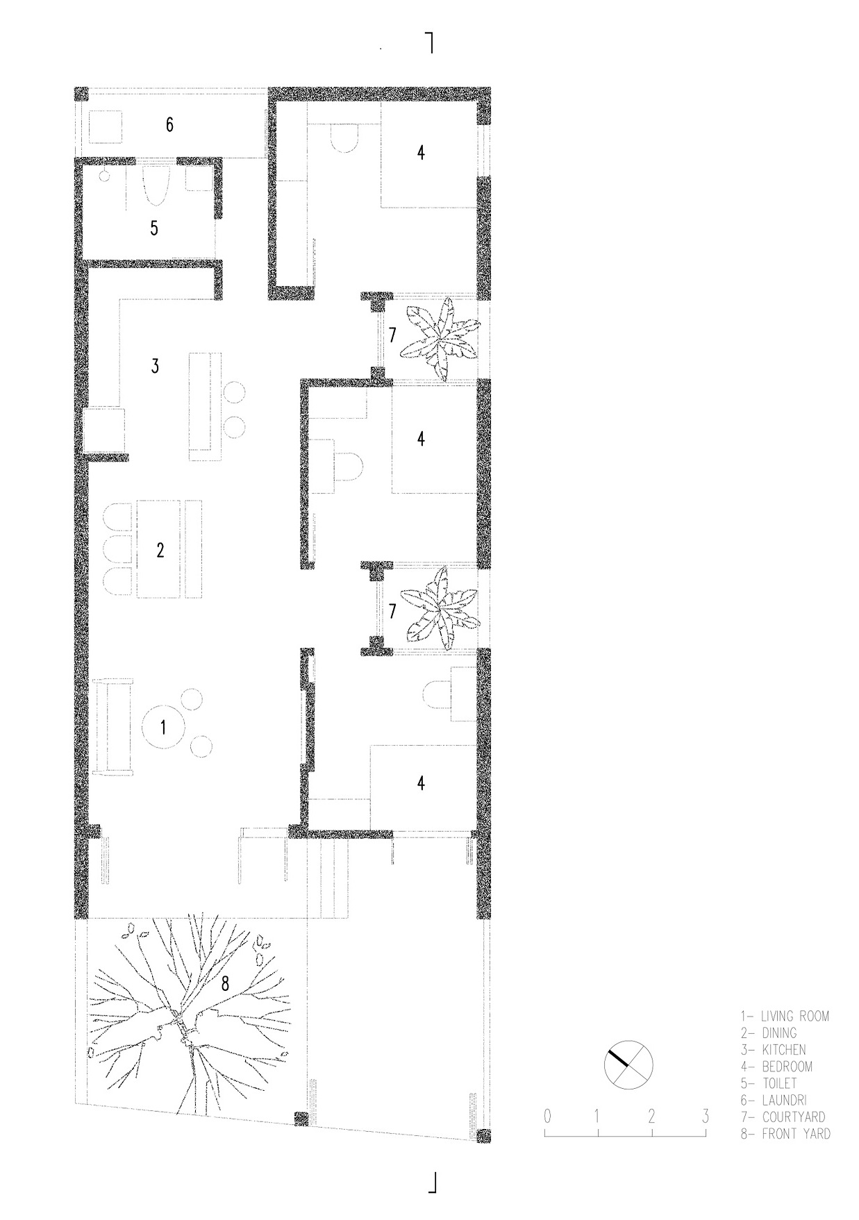
Bản vẽ thiết kế mặt bằng ngôi nhà.

Mặt cắt ngôi nhà.

Phối cảnh nhà 3 gian ở Nghệ An.
Thông tin công trình:
Tên: "3 gian" đương đại
Diện tích: 120m2
Địa điểm: Đô Lương, Nghệ An
Đơn vị thiết kế: Nguyen Khac Phuoc Architects
Kiến trúc sư phụ trách: Nguyễn Khắc Phước
Nhóm thiết kế: Lê Nam, Trần Duy Hân, Diệp Xuân Minh.
Năm hoàn thành: 10/2019
Ảnh: Triệu Chiến
>> Học nhanh còn kịp 16 thủ thuật "nới rộng" phòng khách nhỏ
- Theo Báo pháp luật Tp HCM -